6686官方登录平台新一代宽量程水平螺翼式水表在设计之初即考虑水表安装应用环境的复杂性,因而在流量计量上,我们的产品拥有可轻松应对低流量灵敏计量与流量高区强负载的特点;在安装条件上,产品对直管段的要求为U0/D0。
因产品结构及优化的叶轮流体动态浮动设计,我们新一代宽量程水平螺翼式水表在工作的稳定性和耐久性上历经现场实践检验。
产品的表壳处理采用行业先进的热喷涂工艺,涂层厚度及附着力是普通喷涂的两倍;表壳腔体采用全加工工艺,大大提高机芯更换后计量性能的一致性。
在产品的智能化方面,我们的水表在诸多方面满足各种客户的需求如脉冲远传,无线远传,有线远传。
性能特点
产品功能
■ 宽量程计量,部分系列流量性能优于C级;
■ 低始动流量,兼顾高负载流量;
■ 无直管段安装需求;
■ 硬质合金钢配蓝宝石轴承系统,延长了产品工作时间;
■ 产品性能稳定,工作耐久性优异;
■ 机芯可整体更换;
■ 可提供IP68等级防护产品;
■ 标配纳米涂层,有效防止计数器内雾气产生;
■ 与水接触材料均符合德国KTWNV270饮用水规范要求。
应用领域
■ 既要求高流量也要求低流量精准计量的场合;
■ 区域供水分析(DMA)监控;
■ 水平/垂直安装皆可;
■ 最大可允许50°C水温
远传选项
■ 无源光电直读 M-BUS/RS-485接口/TTL接口;
■ EDC远传:M-BUS/RS-485/Pulse/wM-BUS/LoRaWAN/NB-IOT;
■ 单/三霍尔(干簧管)脉冲远传。
技术参数


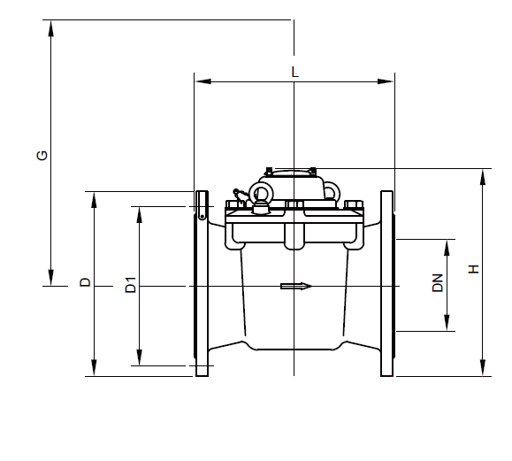
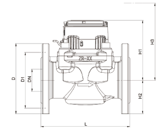
外形尺寸

在线询价